非日常空間が体験できる豪邸一軒家
四季折々の風景を堪能いただけて、あたりを一望できる展望風呂や室外岩風呂を完備している豪邸物件。
お庭や鯉池、室内サウナも完備されており、約3台駐車可能なガレージには
安心安全な電動シャッターがついております。
別荘やセカンドハウスとしてもおススメです。
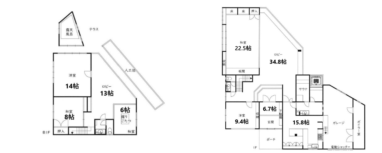
平面図

物件概要
| 物件名 | 滋賀県大津市稲葉台 中古戸建 |
|---|---|
| 物件種別 | 中古戸建 |
| 価格 | 5,980万円(税込) |
| 間取り | 5LDK |
| 所在地 | 滋賀県大津市稲葉台 |
| 交通 | 京阪京津線「追分」徒歩約15分 |
| 現況 | 空家 |
| 引渡時期 | 相談 |
| 取引形態 | 仲介 |
| 情報公開日 | 2024/06/06 |
建物・土地情報
〈 土地 〉
| 土地面積 | 公簿1947.02㎡(588.97坪) |
|---|---|
| 私道負担 | 無 |
| 権利 | 所有権 |
| 地目 | 宅地 / 山林 |
| 接道状況 | 東側公道 幅員約8m、南側公道 幅員約5m |
〈 建物 〉
| 建物面積 | 公簿359.54㎡(108.76坪) 1階93.39㎡、2階253.7㎡、浴室12.45㎡ |
|---|---|
| 構造 | 鉄骨陸屋根2階建、木造ルーフィング葺平屋建 |
| 築年数 | 1985年12月 |
〈 用途地域 〉
| 都市計画 | 市街化調整地区域(都計法29条許可) |
|---|---|
| 用途地域 | 無指定 |
| 建ぺい率 | 60% |
| 容積率 | 200% |
設備
| 水道 | 公営 |
|---|---|
| 下水 | 公共 |
| ガス | 都市ガス |
| 駐車場 | 電動シャッター駐車場 約3台駐車可能 |
| 駐車場 | 有 |
| バイク置き場 | 有 |
| 設備その他 | 室内サウナ・展望風呂・岩風呂 |
周辺観光地・施設
〈 周辺施設 〉
| コンビニ | 徒歩約11分 |
|---|---|
| スーパー | 徒歩約18分 |
| ドラッグストア | 徒歩約11分 |
| 郵便局 | 徒歩約14分 |
| 銀行 | 徒歩約34分 |
備考
- 同用途(住宅)建替え可
- 宅地部分543.29㎡、その他1403.73㎡
- 現況引渡
- 契約不適合責任免責